203B Quinns Road Forreston SA
- 4
- 2
The Ultimate Retreat: 34.09 Ha of Seclusion & a Home Nestled in Nature
INSPECTIONS BY PRIVATE APPOINTMENT ONLY
At the end of a private access road, tucked away from the world and sheltered by a canopy of established trees, lies a property that defines the term "sanctuary." While the land rises to the spectacular "Angels Hill" - the farm's highest point at over 500m above sea level - the residence itself is perfectly positioned in a protected, quiet pocket of the landscape, offering the best of both worlds: soaring views and grounded peace.
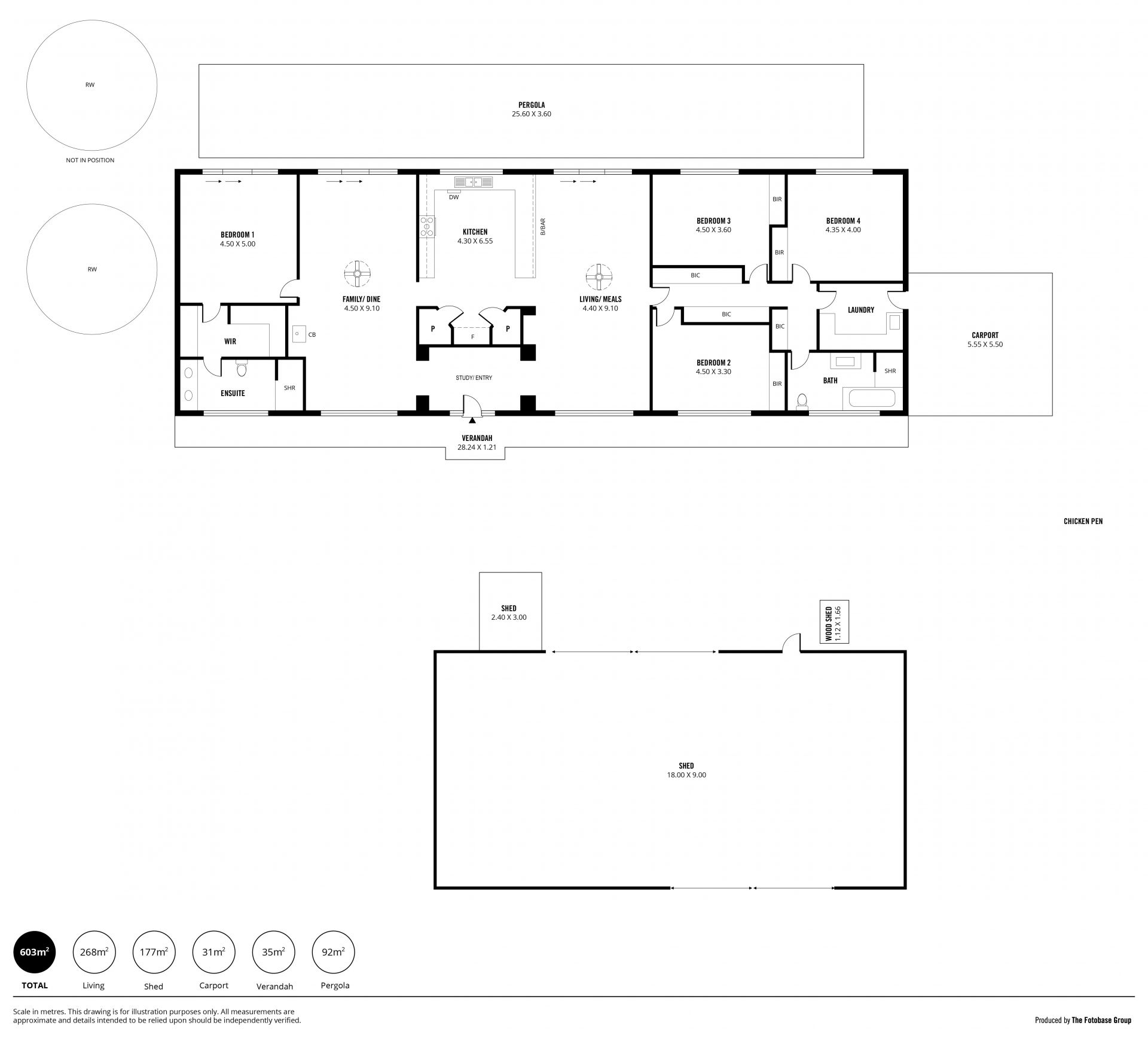
Completed in 2009, this brick veneer residence was designed to sit in harmony with its surroundings. Sheltered and private, the home features high ceilings and a floor plan that prioritises space and light.
The master suite is a generous retreat with a walk-through robe and an immaculate ensuite, while the massive kitchen, equipped with brand-new appliances, acts as the central hub for family life. Whether you are hosting guests in the dining area or curling up by the Nectre wood heater, the home feels solid, quiet, and completely removed from the outside world.
The Land: The property offers approx. 84 acres of interesting terrain that combines rolling hills, two woodlots, and plenty of good grazing. Key features include 10 acres of hay-cutting country and pockets of beautiful "secret scrub." Artisans will love the Olive Grove: approximately 10 acres of "dry land grown" olives, producing high-grade extra virgin oil. The owners have enjoyed many successful harvests with peak yields reaching 6 tonnes.
Infrastructure & Water: Water is supplied for both stock and domestic purposes from two 20,000-gallon concrete tanks, multiple dams, and an excellent annual rainfall. Built for a self-sufficient lifestyle, the property is as functional as it is beautiful. A "Solar Edge" system with 22 panels handles the energy needs. Serious shedding is on offer with an 18m x 9m shed complete with 3-phase power, a slow combustion heater, and a basic kitchen. It is "he/she-cave" heaven.
What we love about this property:
The "Nest" Feeling: A house site that feels protected, quiet, and entirely private.
Angels Hill: A short hike to your own private peak for 360-degree views where it feels like you could touch the sky.
Timeless Quality: Timber doors, skirtings, and architraves throughout a well-maintained residence.
Family Fun: An extensive 25m long paved pergola featuring built-in chessboard and noughts-and-crosses patterns.
Freedom: Work, roam or play. No one will ever know what you and the kids are up to here!
Sustainable Living: Dedicated wood lots to keep the home warm, solar and the "side hustle" potential of the olive grove.
The Orchard: A collection of lemon, lime, plum, orange, mandarin, and cherry trees.
This is a rare opportunity to secure a significant land holding where the home is a true hideaway and the views are simply heavenly.
Ready to make an offer? Head to www.savance.com.au, select the property, and click the 'Make an Offer' tab on the right hand side to source your offer form.
*Whilst every endeavor has been made to verify the correct details in this marketing neither the agent, vendor or contracted illustrator take any responsibility for any omission, wrongful inclusion, misdescription, or typographical error in this marketing material. Accordingly, all interested parties should make their own inquiries to verify the information provided.
The floor plan included in this marketing material is for illustration purposes only, all measurements are approximate and are intended as an artistic impression only. Any fixtures shown may not necessarily be included in the sale contract and any queries must be directed to the agent. Any information that is intended to be relied upon should be independently verified.
At the end of a private access road, tucked away from the world and sheltered by a canopy of established trees, lies a property that defines the term "sanctuary." While the land rises to the spectacular "Angels Hill" - the farm's highest point at over 500m above sea level - the residence itself is perfectly positioned in a protected, quiet pocket of the landscape, offering the best of both worlds: soaring views and grounded peace.
Completed in 2009, this brick veneer residence was designed to sit in harmony with its surroundings. Sheltered and private, the home features high ceilings and a floor plan that prioritises space and light.
The master suite is a generous retreat with a walk-through robe and an immaculate ensuite, while the massive kitchen, equipped with brand-new appliances, acts as the central hub for family life. Whether you are hosting guests in the dining area or curling up by the Nectre wood heater, the home feels solid, quiet, and completely removed from the outside world.
The Land: The property offers approx. 84 acres of interesting terrain that combines rolling hills, two woodlots, and plenty of good grazing. Key features include 10 acres of hay-cutting country and pockets of beautiful "secret scrub." Artisans will love the Olive Grove: approximately 10 acres of "dry land grown" olives, producing high-grade extra virgin oil. The owners have enjoyed many successful harvests with peak yields reaching 6 tonnes.
Infrastructure & Water: Water is supplied for both stock and domestic purposes from two 20,000-gallon concrete tanks, multiple dams, and an excellent annual rainfall. Built for a self-sufficient lifestyle, the property is as functional as it is beautiful. A "Solar Edge" system with 22 panels handles the energy needs. Serious shedding is on offer with an 18m x 9m shed complete with 3-phase power, a slow combustion heater, and a basic kitchen. It is "he/she-cave" heaven.
What we love about this property:
The "Nest" Feeling: A house site that feels protected, quiet, and entirely private.
Angels Hill: A short hike to your own private peak for 360-degree views where it feels like you could touch the sky.
Timeless Quality: Timber doors, skirtings, and architraves throughout a well-maintained residence.
Family Fun: An extensive 25m long paved pergola featuring built-in chessboard and noughts-and-crosses patterns.
Freedom: Work, roam or play. No one will ever know what you and the kids are up to here!
Sustainable Living: Dedicated wood lots to keep the home warm, solar and the "side hustle" potential of the olive grove.
The Orchard: A collection of lemon, lime, plum, orange, mandarin, and cherry trees.
This is a rare opportunity to secure a significant land holding where the home is a true hideaway and the views are simply heavenly.
Ready to make an offer? Head to www.savance.com.au, select the property, and click the 'Make an Offer' tab on the right hand side to source your offer form.
*Whilst every endeavor has been made to verify the correct details in this marketing neither the agent, vendor or contracted illustrator take any responsibility for any omission, wrongful inclusion, misdescription, or typographical error in this marketing material. Accordingly, all interested parties should make their own inquiries to verify the information provided.
The floor plan included in this marketing material is for illustration purposes only, all measurements are approximate and are intended as an artistic impression only. Any fixtures shown may not necessarily be included in the sale contract and any queries must be directed to the agent. Any information that is intended to be relied upon should be independently verified.
Features
- Living Area